(一)基础信息:
单位名称:徐州市芭田生态有限公司
组织机构代码:91320322778681679L
法人代表:潘有理
生产地址:江苏省徐州市沛县经济技术开发区郝寨路南。
联系方式:18086780245
生产经营和管理服务的主要内容、产品:生产销售多元复合肥和其他肥料;化肥和化工原料(危险品除外)购销,60万吨NPK复合肥项目,属于规模上企业
(二)排污信息:
1、生产工艺粉尘:根据工艺流程,生产工艺粉尘主要来源于干燥机和冷却机及筛分等其他生产环节。生产中的工艺粉尘通过配套的布袋式除尘器除尘后排到大气中去,冷却工艺中物料产生一定的粉尘经过引风机和除尘设施除尘排到大气中去,除尘采用静电式除尘和布袋式除尘组合式工艺回收粉尘,其他生产环节中产生的粉尘以及筛分环节产生的少量粉尘,大部分粉尘通过组合式除尘泵回收粉尘后经水雾喷淋后达标气体通过烟囱高空排放。主要排放口标准:颗粒物许可排放排放浓度限值,120 mg/m3,;氮氧化物许可排放排放浓度限值,240mg/m3。
2、燃烧废气:主要来源于生物质燃烧后排放出来的废气。本公司现使用生物质蒸汽锅炉,经过环保设备的处理后达标排放。烟气黑度许可排放限值为Ⅰ级;颗粒物许可排放浓度30mg/Nm3;二氧化硫许可排放浓度200 mg/Nm3;氮氧化物许可排放浓度200 mg/Nm3;汞及其化合物0.05 mg/Nm3
3、废水:本公司废水包括生活废水及冲洗生产设备产生的废水经过公司污水处理站处理符合接管标准后排放;排放方式为间接性排放,排放浓度:PH许可排放浓度限值6-9;悬浮物许可排放浓度限值100mg/L;化学需氧量许可排放浓度限值150mg/L,;氨氮许可排放浓度限值30mg/L;总磷许可排放浓度限值20mg/L;总氮许可排放浓度限值60 mg/L。
4、废水排放口一个(编号DW001)废气排放口九个(编号DA001-DA009);
5、排放方式:废气排放方式为有组织排放和无组织排放;废水排放方式为间断排放。
6、主要排放口排放总量: A、废气:颗粒物5.17T/a;氮氧化物99.84 T/a; B、废水:CODcr0.6 T/a;氨氮0.09T/a;总氮5.4 T/a;总磷1.8 T/a
7、本公司无排放浓度超标现象。
9、执行的污染物排放标准:A锅炉大气污染物排放标准GB13271-2014;大气污染物综合排放标准GB16297-1996;恶臭污染物排放标准GB14554-93;B、废水执行标准;磷肥工业水污染物排放标准GB15580-2011
8、废水排放口在厂区东南侧;废气排放口在厂区中部
(三)防治污染设施的建设和运行情况
1、废水
本公司建有一套先进的污水处理系统;吹脱加气浮加生化A/O污水处理工艺每天16小时运行,且安装了氨氮、COD、总磷、总氮、PH在线自动监测仪进行实时监测,保证处理过的废水达标排放,目前设备运行正常。
2、废气
本公司设置多套高效的废气处理设施:包括脉冲布袋除尘器、干式滤芯除尘器、水喷淋洗涤塔及锅炉烟气脱硫脱硝处理系统;其中锅炉废气排放口还安装了数字化智能气体监测仪进行实时在线监测,保证废气的达标排放;目前各废气处理设施正常稳定运行。
(四)建设项目环境影响评价及环境保护行政许可







(五)其他环保信息

徐州市芭田生态有限公司自行监测方案
按照环境报告相关法律、法规要求,徐州市芭田生态有限公司对所排放的污染物组织开展自行监测及信息公开,并制定自行监测方案。
生产过程中产生的冲洗废水全部送往厂内污水处理站集中处理后达标排放,污水处理站采用吹脱加气浮加A/O工艺加芬顿系统进行处理,出水污染物浓度达到《磷肥工业水污染物排放标准》(GB15580-2011)中的间接排放限值要求。
废气治理设施主要包括:锅炉脱硫脱硝除尘、生产废气除尘等治理设施,目前这些污染治理设施运行正常,满足《锅炉大气污染物排放标准》和《大气污染物综合排放标准》要求。
自行监测方式为自动监测与手工监测相结合,自动监测为委托第三方运营机构进行运维,承担委托运维的单位名称为徐州市利源科技有限公司;手工监测为自承担监测。


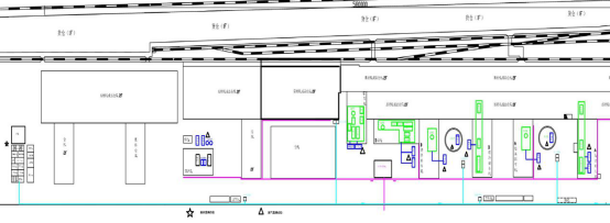
2.监测点位示意图
自行监测点位示意图见图1。
图1 自行监测点位示意图
一、 监测内容及公开时限
1.废气监测
废气监测内容见表2。

2.废水监测
废水监测内容见表3。

3.噪声监测
噪声监测内容见表2。
二、 监测评价标准
1.废气评价标准
锅炉废气执行《锅炉大气污染物排放标准》(GB13271-2014),Ⅱ时段二类区标准;生产废气执行《大气污染物综合排放标准》(GB16297-96)表2中二级标准。详见表3-1。

3.噪声评价标准
厂界噪声执行《工业企业厂界环境噪声排放标准》(GB12348-2008)中3类标准限值,详见表3-2。
三、 监测方法及监测质量控制
1.手工监测
各类污染物采用国家和江苏省相关污染物排放标准、现行的生态环境部发布的国家或行业环境监测方法标准和技术规范规定的监测方法开展监测。手工监测方法及仪器设备详见表4。
企业产品检验实验室承担废水污染因子手工监测工作,具备固定的实验室和监测工作条件,采用经依法检定合格的监测仪器设备,有健全的自行监测质量管理制度,能够在正常生产时段内开展监测,真实反映污染物排放状况;废气污染因子的手工监测工作由企业委托具备检测资质的第三方检测机构按监测频次开展监测工作。
监测质量保证和质量控制严格执行国家环境监测技术规范和环境监测质量管理规定,实施全过程的质量保证,保证监测结果的代表性、准确性和可比性。
2.自动监测
废气污染物自动监测按照《固定污染源烟气排放连续监测技术规范》(试行)(HJ/T75-2007)和《固定污染源烟气排放连续监测系统技术要求及检测
严格按照国家环境监测技术规范和环境监测管理规定的要求开展自行监测,所采用的自动监测设备已委托淮安市华测检测有限公司开展比对验收工作,将定期通过有效性审核,并加强运行维护管理,能够保证设备正常运行和数据正常传输。



